Bạn đang tìm mẫu nhà phố cao tầng trên lô đất ngang 3m và dài 14m, với cấu trúc 1 trệt + lửng + 3 lầu + tum sân thượng, có thang máy để xây nhà trọn gói tại Tp.HCM, thì dưới đây là bản triển khai chi tiết (về mặt bằng, thiết kế, chi phí – lưu ý) phù hợp nhu cầu thực tế, giúp bạn hình dung rõ ràng cách vận hành và tổ chức không gian cho gia đình.
Mẫu Nhà 1 Trệt Lửng 3 Lầu Tum Sân Thượng 3x14m
Mẫu nhà phố tân cổ điển 1 trệt lửng 3 lầu tum với diện tích 3x14m là một thiết kế ấn tượng, cân bằng hoàn hảo giữa công năng và thẩm mỹ. Dù sở hữu mặt tiền nhỏ, ngôi nhà vẫn được KTS Việt Nhật Group xử lý khéo léo để tạo nên không gian sống tiện nghi, sang trọng và thoáng đãng.
Phối cảnh mặt tiền ngôi nhà gây ấn tượng với phong cách tân cổ điển nhẹ nhàng, nhấn mạnh vào những chi tiết phào chỉ tinh tế, lan can sắt nghệ thuật uốn lượn mềm mại, cùng hệ cửa kính đen khung nhôm giúp đón ánh sáng tự nhiên. Sắc trắng chủ đạo kết hợp với gạch ốp nâu – đen tạo điểm nhấn sang trọng, giúp công trình nổi bật giữa dãy phố hiện đại.
Ngôi nhà được tích hợp thang máy – tiện ích cao cấp giúp việc di chuyển giữa các tầng trở nên dễ dàng, đặc biệt phù hợp với gia đình có người lớn tuổi hoặc trẻ nhỏ.

Mẫu Nhà 1 Trệt Lửng 3 Lầu Tum Sân Thượng 3x14m
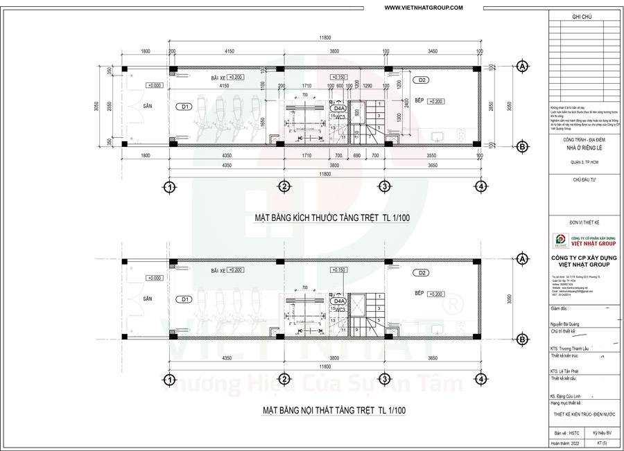
Tầng trệt – Không gian sinh hoạt chính, tiện ích và thoáng mát
KTS Việt Nhật Group thiết kế tầng trệt với khoảng sân trước nhỏ để tạo sự thoáng đãng, vừa là nơi trồng cây xanh, vừa có thể dùng để đỗ xe máy bên ngoài. Bên trong là khu vực để xe trong nhà, diện tích đủ để để xe máy và ô tô gia đình. Khu vực bếp – ăn bố trí khoa học, phía cuối ngôi nhà, ngăn cách các phòng công năng bằng thang máy và cầu thang bộ. Tận dung không gian dưới gầm cầu thang để thiết kế WC, thuận tiện cho nhu cầu sử dụng tại tầng trệt.

Bản vẽ thiết kế mặt bằng tầng trệt
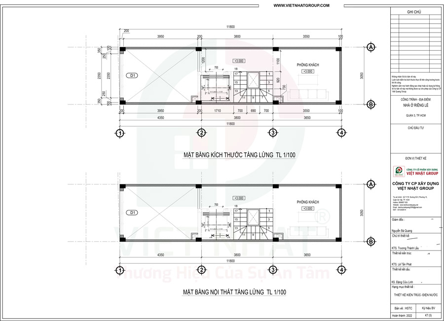
Tầng lửng – Phòng khách sang trọng và kết nối
Đóng vai trò như trái tim của ngôi nhà – nơi gắn kết các thành viên, phòng khách được đặt tại tầng lửng với tầm nhìn hướng vào trong, tối ưu không gian sử dụng của căn phòng. Không gian được thiết kế cao thoáng, trần ốp đèn LED hiện đại, kết hợp cùng lan can kính giúp tổng thể trở nên sang trọng, tinh tế. Từ đây, gia chủ có thể dễ dàng quan sát toàn bộ không gian tầng trệt, tạo cảm giác kết nối liên thông giữa các khu vực sinh hoạt.

Bản vẽ thiết kế mặt bằng tầng lửng
>>> Tham khảo đơn giá xây dựng nhà tại Tp.HCM:
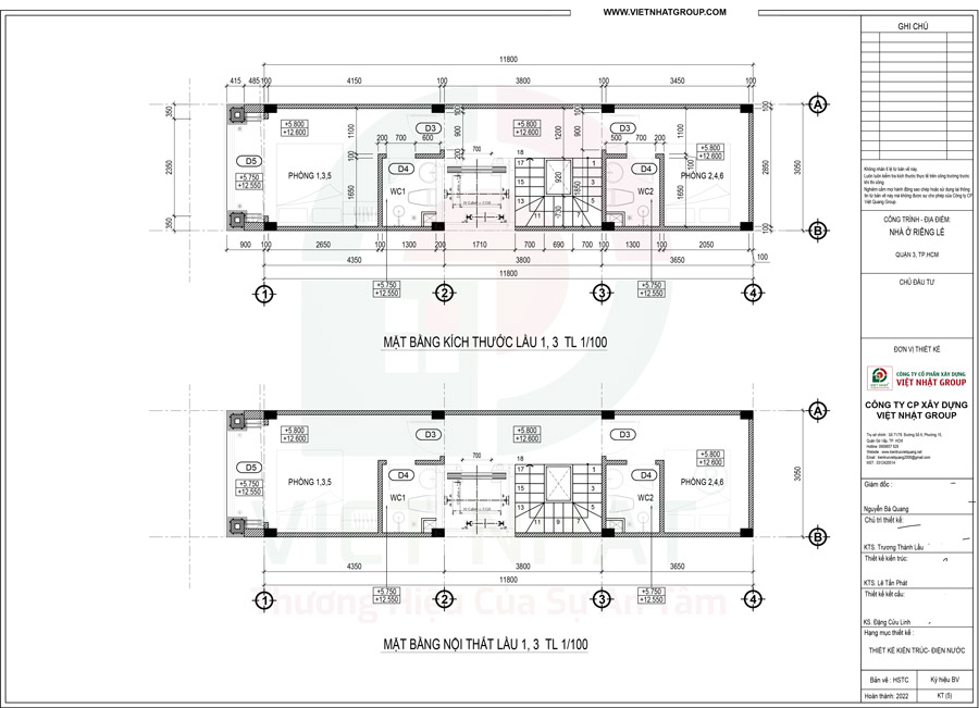
Lầu 1, 2, 3 – Khu nghỉ ngơi riêng tư, ấm cúng
Lầu 1 được bố trí 02 phòng ngủ khép kín, mỗi phòng đều có WC riêng để mang lại sự tiện nghi tối đa. Phòng ngủ phía trước có cửa kính mở ra ban công, đón sáng và gió tự nhiên, rất phù hợp làm phòng ngủ chính cho vợ chồng. Phòng phía sau kín đáo, yên tĩnh, phù hợp cho con nhỏ hoặc phòng làm việc cá nhân.
Tương tự lầu 1, tầng này cũng có 02 phòng ngủ khép kín với cách bố trí linh hoạt. Gia chủ có thể dùng một phòng làm phòng ngủ cho khách, phòng còn lại có thể làm phòng học, phòng làm việc hoặc phòng sinh hoạt riêng cho con cái. Thiết kế thông thoáng, mỗi phòng đều được bố trí cửa sổ lớn để lấy sáng và đảm bảo lưu thông không khí tự nhiên.
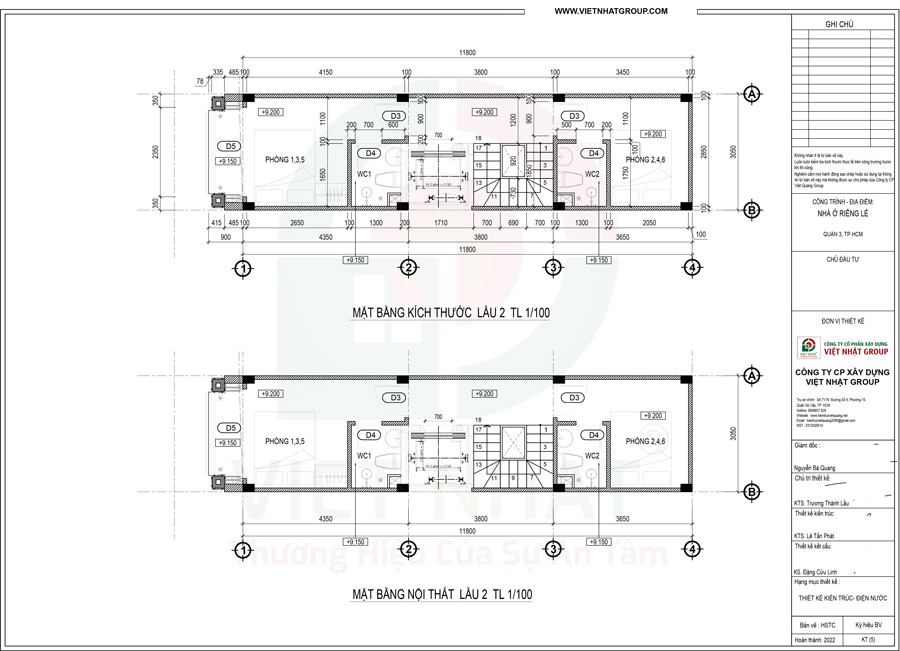
Lầu 3 tiếp tục duy trì bố cục 02 phòng ngủ – 02 WC riêng, nhưng có thể linh hoạt tùy theo nhu cầu. Một phòng được chuyển đổi thành phòng thờ hướng ra phía trước, đảm bảo yếu tố phong thủy. Phòng còn lại dùng làm kho chứa đồ hoặc phòng giải trí của gia đình.
Nếu bạn xây dựng nhà phố để cho thuê căn hộ dịch vụ, ba tầng bố trí 06 phòng trọ khép kín – WC riêng, đáp ứng nhu cầu sử dụng của khách thuê phòng.

Bản vẽ thiết kế mặt bằng lầu 1, lầu 3

Bản vẽ thiết kế mặt bằng lầu 2
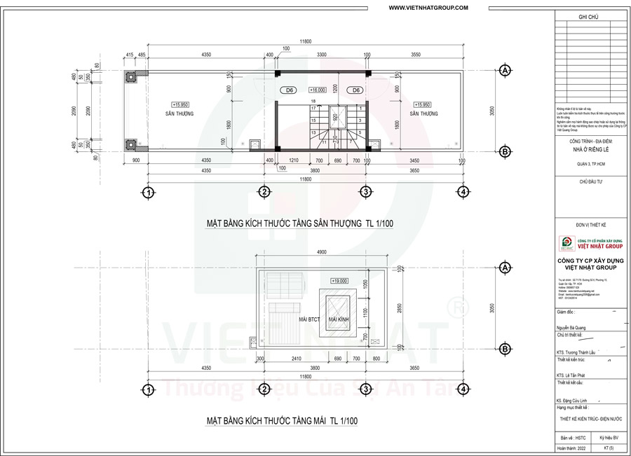
Tum và sân thượng – Không gian xanh thư giãn giữa phố thị
Khu vực tum được tận dụng để đặt máy giặt, khu phơi đồ, và có thể làm phòng nhỏ hoặc kho kỹ thuật thang máy. Phía trước là sân thượng rộng rãi, nơi gia chủ bố trí vườn cây xanh, bàn trà, tiểu cảnh hoặc khu BBQ nhỏ – không gian thư giãn lý tưởng giữa lòng thành phố. Với lan can sắt hoa văn tinh xảo, khu sân thượng vừa đẹp vừa đảm bảo an toàn, đồng thời làm điểm nhấn kiến trúc cho toàn bộ công trình.

Bản vẽ thiết kế mặt bằng tầng thượng, mái
Tổng thể bố cục công năng được thiết kế khoa học, giúp tận dụng tối đa diện tích đất 3x14m nhưng vẫn mang lại cảm giác thoải mái, tiện nghi và đẳng cấp. Việc tích hợp thang máy càng tăng thêm giá trị sử dụng, thể hiện sự đầu tư tinh tế và hiện đại của chủ nhà.
Nếu bạn cần xây dựng nhà 1 trệt lửng 3 lầu 3x14m này, liên hệ ngay đến Việt Nhật Group để được hỗ trợ tư vấn, báo giá xây nhà trọn gói nhanh chóng, không phát sinh chi phí.
Từ khóa: xay nha | giá xây nhà | sửa nhà trọn gói | báo giá sửa nhà | xây dựng nhà phần thô | giá nhân công xây dựng phần thô































































